$5,499,000

$1,000,000

1717 Brock Street S, Whitby, ON L1N 4M7

Port Whitby, Whitby,

| | 55,166 平方英尺 |

Properties with this icon are courtesy of TRREB.

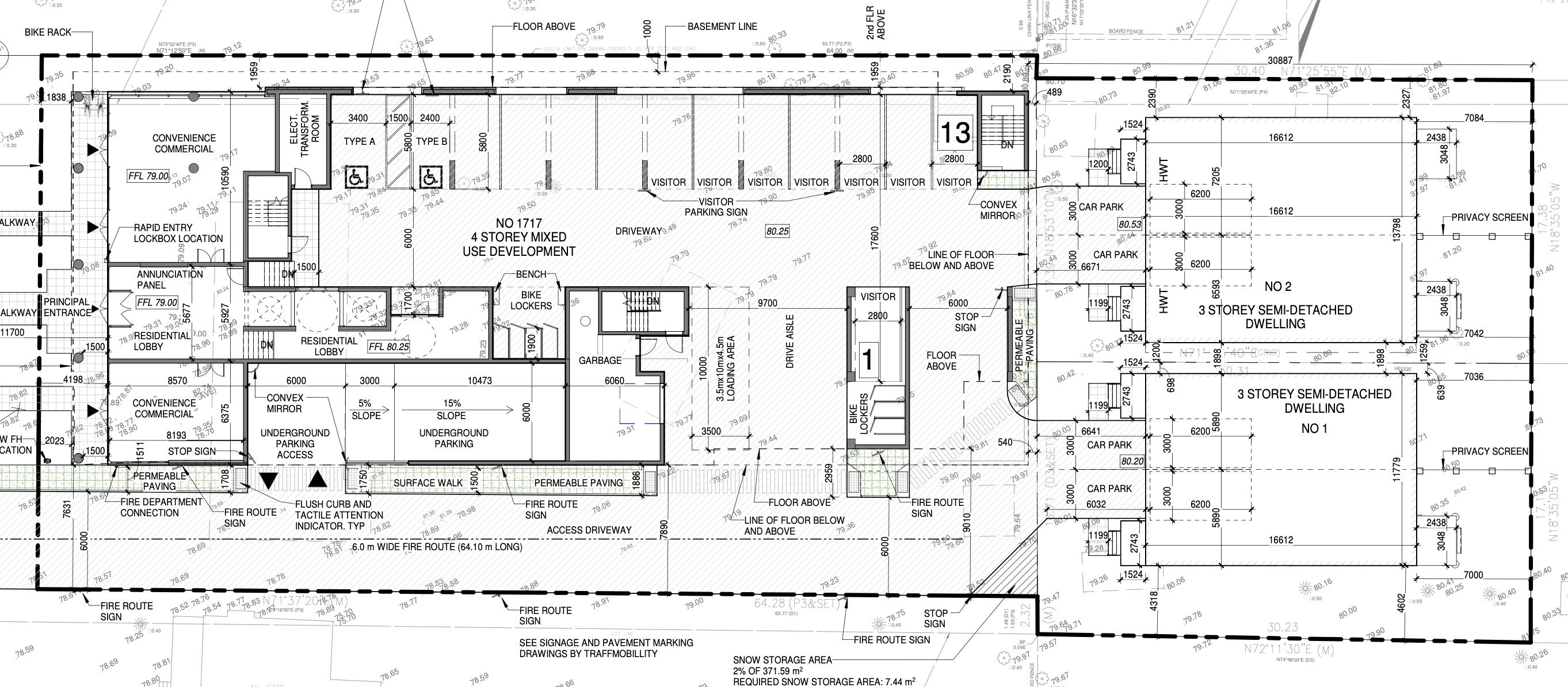
THIS SITE IS BEING OFFERED under POWER OF SALE. Exceptional residential development being a total of 55,166 square feet Buildable. The property is Zoning Approved for Residential Mixed-Use redevelopment on Brock St. S and is at 2nd stage submission for the Site Plan Application, less than 6 months to approval allowing purchasers to make changes as needed to the final proposal. This versatile site presents strong development flexibility. While well-suited for condominium, it also represents an excellent opportunity for a purpose-built rental building. With current market conditions in the Durham Region and GTA showing sustained high demand for quality rental housing-driven by population growth, proximity to transit, employment hubs, and waterfront amenities-developing for long-term rental hold could yield attractive returns amid ongoing rental market tightness.The property's location, exposure, and approvals position it for an efficient transition to construction for an active builder/developer seeking an immediate project. This exceptional property boasts a Total Buildable Space of 55,166 sq. ft., offering immense development potential across two primary areas. The proposed development features: 29 Condominium Units and 4 Semi-Detached Units with 52 parking spaces. The Port of Whitby area has emerged as a target for residential intensification due to its exceptional location in perspective to the waterfront and downtown Whitby, as well as public transit, major highways and amenities. There are a number of high-rise mixed-use developments that have been proposed, approved and sold within the immediate area. Property being sold "as is, where is."

翻译

房屋信息
MLS®: E12550232
上盘公司 RE/MAX REALTRON REALTY INC.
室内面积 55166 平方英尺
土地面积 33150 平方英尺
最后更新 2025-11-17
物业属性 商业
挂盘价格 $5,499,000
单位价格 $100/平方英尺
地税额度 $7,074/年
更多信息
供水方式 Municipal
基建 Sanitary+Storm
详细描述
    位置和一般信息
  • HoldoverDays: 180
  • 房屋种类: Commercial
  • 房屋子类: Land
  • 路线: Victoria Rd E & Brock St S
  • 税收和 HOA 信息
  • 纳税年度: 2025
  • 停车
内部和外部特点
    内部特点
    外部特点
房屋
    公共服务
  • 下水道: Sanitary+Storm
  • 地产及评估
  • 建筑面积 (总): 55166
  • 建筑面积单位: Sq Ft Divisible
  • 地块信息
  • LotSizeUnits: Feet
  • LotDepth: 309
  • LotWidth: 107.28
  • Others
销售历史
地图与附近设施
地图
附近概况
公共交通 ({{ nearByFacilities.transits? nearByFacilities.transits.length:0 }})
购物中心 ({{ nearByFacilities.supermarkets? nearByFacilities.supermarkets.length:0 }})
医疗设施 ({{ nearByFacilities.hospitals? nearByFacilities.hospitals.length:0 }})
其他 ({{ nearByFacilities.pois? nearByFacilities.pois.length:0 }})
附近学区
学校名称 类型 Grades Catchment 距离
{{ item.school_type }} {{ item.school_grades }} {{ item.is_catchment? 'In Catchment': '' }} {{ item.distance }}
贷款计算器
$
$
$
%
%
预计付款

$

每周 双周 半月 每月

附近的类似在盘房源
附近的类似Open House房源
附近的投资推荐(降价)房源
附近的类似已成交房源
房源浏览历史记录
获取更多信息
剩余字数500