$2,500

17 Bathurst Street 1616, Toronto C01, ON M5V 0N1

Waterfront Communities C1, Toronto,

| | 599 平方英尺 | 建筑年份: 0-5 |

Properties with this icon are courtesy of TRREB.

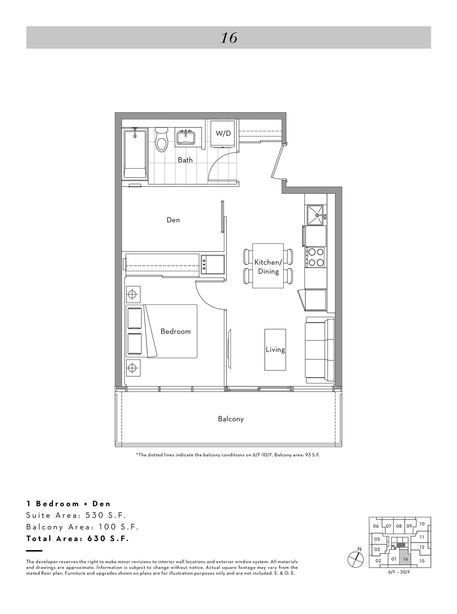
Immaculate Unit In The Sought After Lakefront Building. Beautiful Kitchen With High End Appliances, Built In Refrigerator, Dishwasher, Marble Countertops. Open Concept W/ Access To The Patio. This 1Br + Den Offers Space And Access To Many Amenities: Pool, Sauna, Complete Gym With A Breath Taking Bbq Terrace On The Rooftop, A Mini-Putt Area. Right Next To The Island Airport!! Perfect District For Professionals! Must See!!

翻译

房屋信息
MLS®: C12654436
上盘公司 BAY STREET GROUP INC.
卧室 2
洗手间 1
地下室 1
室内面积 500-599 平方英尺
风格 Apartment
最后更新 2026-01-01
物业属性 公寓
挂盘价格 $2,500
建造年份 0-5
房间信息
更多信息
外部装修 砖, 混凝土
详细描述
    位置和一般信息
  • HoldoverDays: 60
  • 建筑样式: Apartment
  • 房屋种类: Residential Condo & Other
  • 房屋子类: Condo Apartment
  • GarageType: Other
  • 路线: S
  • 停车
  • 停车位特点: None
内部和外部特点
    洗手间信息
  • WashroomsType1: 1
  • WashroomsType1Level: Main
  • 卧室信息
  • BedroomsAboveGrade: 1
  • BedroomsBelowGrade: 1
  • 内部特点
  • 内部特点: None
  • 地下室: None
  • Cooling: Central Air
  • HeatSource: Gas
  • HeatType: Forced Air
  • LaundryLevel: Main Level
  • 外部特点
  • ConstructionMaterials: Brick, Concrete
房屋
    公共服务
    地产及评估
    地块信息
    Others
  • PropertyFeatures: Clear View, Marina, Park, Place Of Worship, Public Transit, School
销售历史
地图与附近设施
地图
附近概况
公共交通 ({{ nearByFacilities.transits? nearByFacilities.transits.length:0 }})
购物中心 ({{ nearByFacilities.supermarkets? nearByFacilities.supermarkets.length:0 }})
医疗设施 ({{ nearByFacilities.hospitals? nearByFacilities.hospitals.length:0 }})
其他 ({{ nearByFacilities.pois? nearByFacilities.pois.length:0 }})
附近学区
学校名称 类型 Grades Catchment 距离
{{ item.school_type }} {{ item.school_grades }} {{ item.is_catchment? 'In Catchment': '' }} {{ item.distance }}
城市概况
附近的类似在盘房源
附近的类似Open House房源
附近的投资推荐(降价)房源
附近的类似已成交房源
房源浏览历史记录
获取更多信息
剩余字数500