$2,800

18 Knightsbridge Road 2605, Brampton, ON L6T 3X5

Queen Street Corridor, Brampton,

| | 999 平方英尺 |

Properties with this icon are courtesy of TRREB.

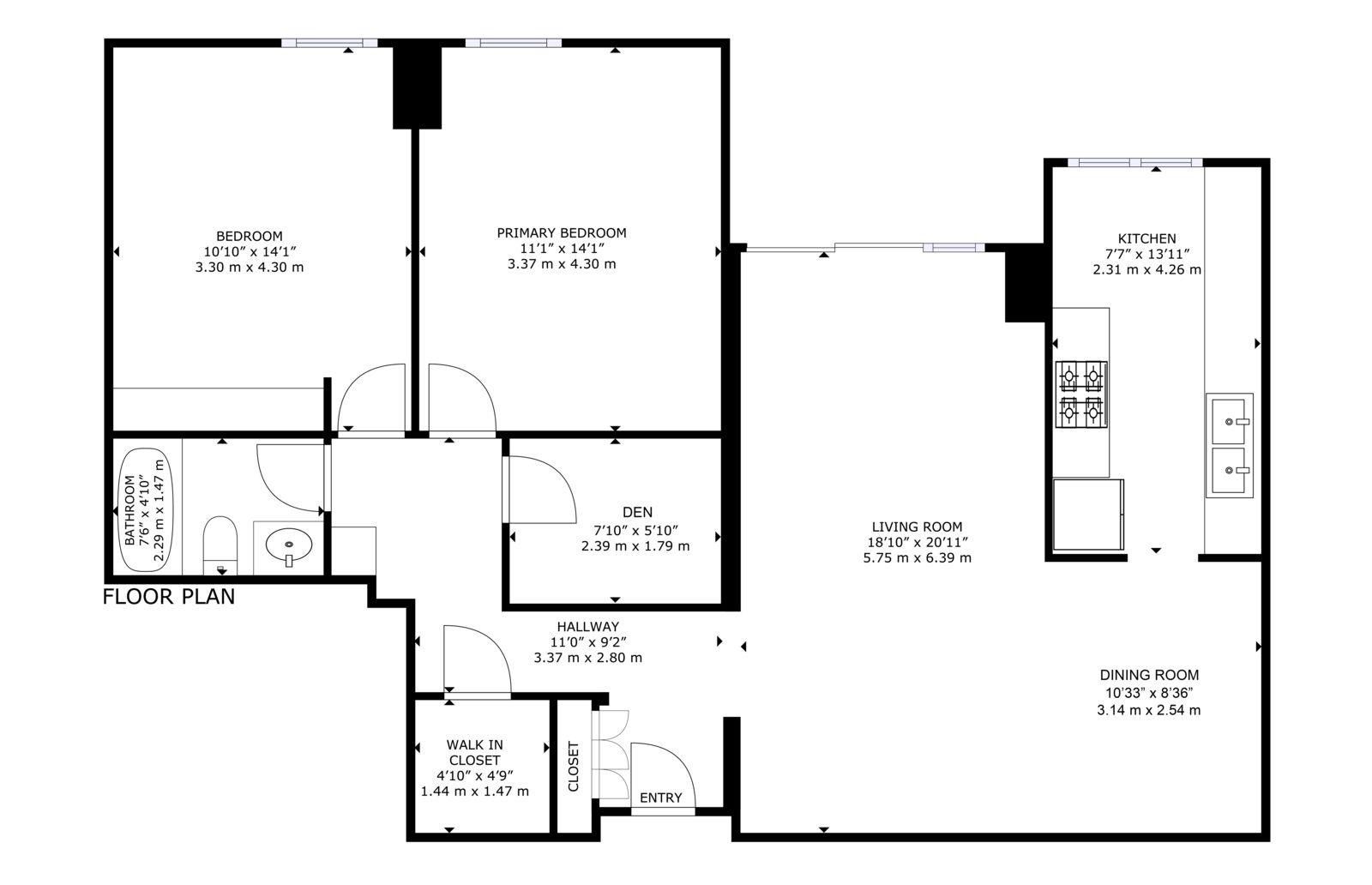
Professionally Renovated From Top to Bottom with Modern Touches, Quality Finishes & A Great Sense of Neutrality. This Unit Features 957 Sq. Ft of Living Space, Sep Living & Dining Room, 2 Bedrooms + Den, 1 Bathroom and 1 Parking Space. Lots of Sunlight Pouring In With An Eastern Exposure & Large Balcony. All Utilities Included in Maintenance. Centrally Located to Schools, Malls, Libraries, Highways and Chinguacousy Park.

翻译

房屋信息
MLS®: W12637688
上盘公司 HOMELIFE/MIRACLE REALTY LTD
卧室 3
洗手间 1
地下室 1
室内面积 900-999 平方英尺
风格 Apartment
最后更新 2025-12-17
物业属性 公寓
挂盘价格 $2,800
房间信息
更多信息
外部装修
非露天车位 1
详细描述
    位置和一般信息
  • HoldoverDays: 90
  • 建筑样式: Apartment
  • 房屋种类: Residential Condo & Other
  • 房屋子类: Condo Apartment
  • GarageType: Underground
  • 路线: Bramalea Rd/Queen St.
  • 停车
  • 停车位特点: Private
  • 停车位总数: 1
内部和外部特点
    洗手间信息
  • WashroomsType1: 1
  • WashroomsType1Level: Main
  • 卧室信息
  • BedroomsAboveGrade: 2
  • BedroomsBelowGrade: 1
  • 内部特点
  • 内部特点: Carpet Free
  • 地下室: None
  • Cooling: Central Air
  • HeatSource: Gas
  • HeatType: Forced Air
  • 外部特点
  • ConstructionMaterials: Brick
房屋
    公共服务
    地产及评估
    地块信息
    Others
  • PropertyFeatures: Library, School, Park, Place Of Worship, Rec./Commun.Centre, Public Transit
销售历史
地图与附近设施
地图
附近概况
公共交通 ({{ nearByFacilities.transits? nearByFacilities.transits.length:0 }})
购物中心 ({{ nearByFacilities.supermarkets? nearByFacilities.supermarkets.length:0 }})
医疗设施 ({{ nearByFacilities.hospitals? nearByFacilities.hospitals.length:0 }})
其他 ({{ nearByFacilities.pois? nearByFacilities.pois.length:0 }})
附近学区
学校名称 类型 Grades Catchment 距离
{{ item.school_type }} {{ item.school_grades }} {{ item.is_catchment? 'In Catchment': '' }} {{ item.distance }}
附近的类似在盘房源
附近的类似Open House房源
附近的投资推荐(降价)房源
附近的类似已成交房源
房源浏览历史记录
获取更多信息
剩余字数500