$1,150,000

35 Alldread Crescent, Clarington, ON L1B 0C2

Newcastle, Clarington,

| | | 2,500 平方英尺 | 建筑年份: 6-15 |

Properties with this icon are courtesy of TRREB.

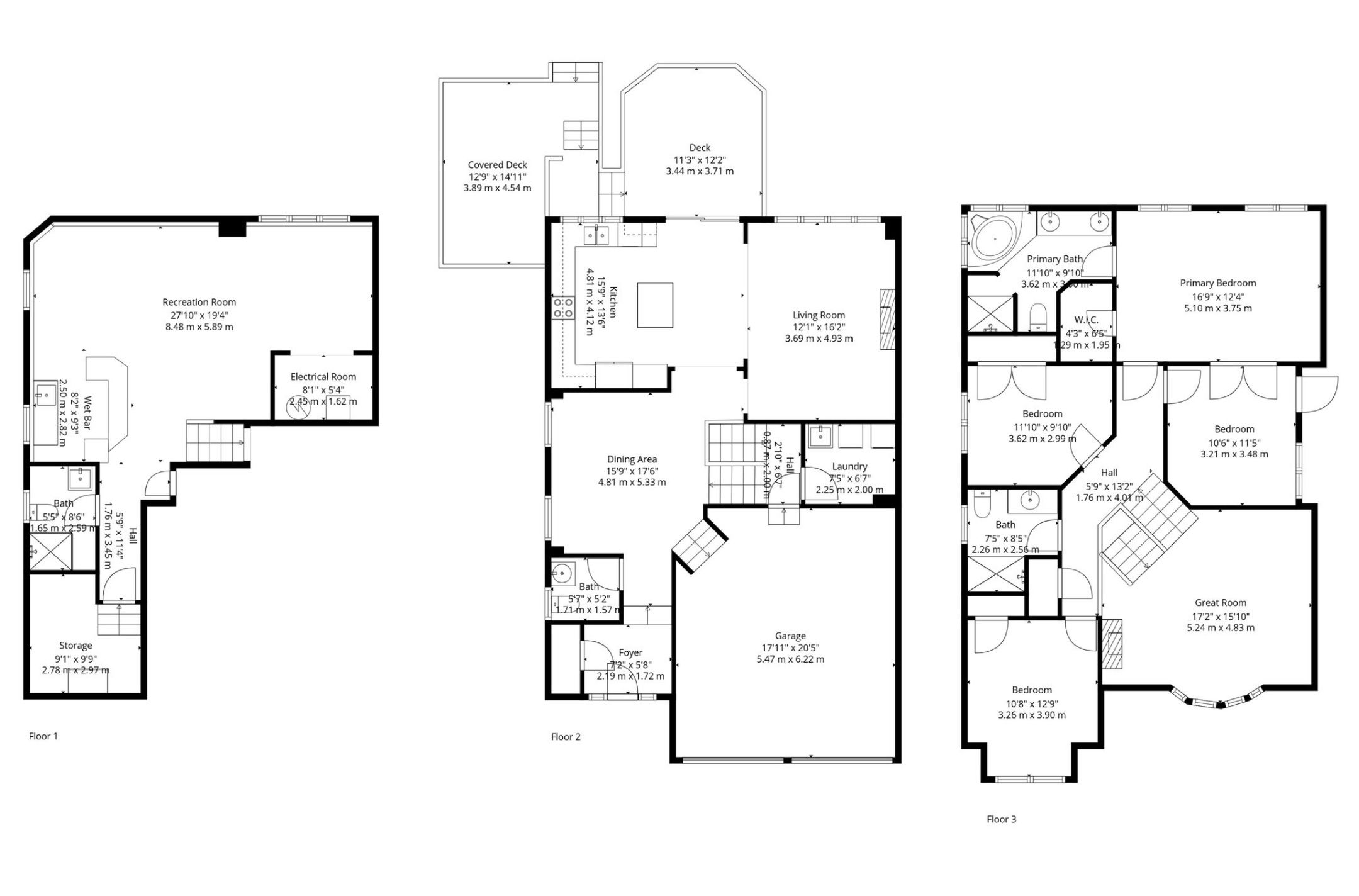
Set on one of the largest lots in the Port of Newcastle, this is the kind of property that rarely comes to market-and even more rarely gets replaced once you have it.Just shy of 1/3 of an acre, the outdoor space alone sets this home apart. Fully fenced with multiple zones to gather, unwind, and entertain, from tiered decks to a covered gazebo and a private hot tub retreat, this backyard was designed to be used-not just looked at.Inside, the layout offers a level of flexibility that works for real life. A soaring great room with a dramatic picture window brings in natural light and creates a true focal point, while a separate main floor living room with gas fireplace and a finished lower-level rec space give you three distinct areas to spread out, host, or simply have your own space.The kitchen is positioned at the centre of it all, with granite counters, a large island, and seamless flow to dining and outdoor living-exactly where you want it when the house is full.Upstairs, the primary suite features hardwood flooring, a walk-in closet with built-ins, and a 5-piece ensuite. Three additional bedrooms and a full bath complete the upper level, offering space for family, guests, or work-from-home needs.The lower level adds even more versatility, with above-grade windows, a 3-piece bath, wet bar, and direct access to the garage-ideal for a future in-law setup, guest suite, or keeping it as the ultimate entertaining zone.Located in the Port of Newcastle, you're steps to the waterfront trail, marina, and lake-but what truly sets this property apart is the inclusion of a transferable Gold Membership to the Admirals Walk Clubhouse. Enjoy access to the indoor pool, fitness centre, theatre room, and lounge without the significant initiation fee typically required for new memberships. Monthly fees apply.Homes with this kind of lot, layout, and added value don't come up often. This is one you'll want to see in person. Under an hour to Toronto. Watch the virtual tour.

翻译

房屋信息
MLS®: E13033656
上盘公司 ROYAL SERVICE REAL ESTATE INC.
卧室 4
洗手间 4
地下室 1
室内面积 2000-2500 平方英尺
土地面积 4003 平方英尺
风格 Sidesplit 4
最后更新 2026-04-23
物业属性 独立屋
挂盘价格 $1,150,000
单位价格 $460/平方英尺
地税额度 $6,779/年
建造年份 6-15
房间信息
更多信息
外部装修 乙烯化合物墙板, Brick Veneer
非露天车位 2
车位总数 4
供水方式 Municipal
基建 Sewer
详细描述
    位置和一般信息
  • HoldoverDays: 90
  • 建筑样式: Sidesplit 4
  • 房屋种类: Residential Freehold
  • 房屋子类: Detached
  • DirectionFaces: South
  • GarageType: Attached
  • 路线: South of Hwy 401 on Mill Street S, at 4 way stop go straight, turns into Port of Newcastle Drive, Turn left/West onto Milligan, turn left/South onto Alldread
  • 税收和 HOA 信息
  • 纳税年度: 2025
  • 停车
  • 停车位特点: Private Double
  • ParkingSpaces: 4
  • 停车位总数: 6
内部和外部特点
    洗手间信息
  • WashroomsType1: 1
  • WashroomsType1Level: Main
  • WashroomsType2: 1
  • WashroomsType2Level: Upper
  • WashroomsType3: 1
  • WashroomsType3Level: Upper
  • WashroomsType4: 1
  • WashroomsType4Level: Basement
  • 卧室信息
  • BedroomsAboveGrade: 4
  • 内部特点
  • 壁炉总数: 1
  • 内部特点: Air Exchanger, Auto Garage Door Remote, Carpet Free, Central Vacuum, ERV/HRV, In-Law Capability, Water Heater, Water Meter
  • 地下室: Full, Walk-Up, Finished
  • Cooling: Central Air
  • HeatSource: Gas
  • HeatType: Forced Air
  • 外部特点
  • ConstructionMaterials: Vinyl Siding, Brick Veneer
  • 外部特点: Deck, Hot Tub, Landscaped, Porch, Year Round Living
  • 屋顶: Asphalt Shingle
  • 泳池特点: None
  • 水滨特点: Marina Services
房屋
    公共服务
  • 下水道: Sewer
  • 地产及评估
  • 基建详情: Poured Concrete
  • 地块信息
  • 地块号: 266611392
  • LotSizeUnits: Feet
  • LotDepth: 170.94
  • LotWidth: 23.42
  • Others
  • PropertyFeatures: Fenced Yard, Greenbelt/Conservation, Park, Marina, Lake/Pond, School Bus Route
销售历史
地图与附近设施
地图
附近概况
公共交通 ({{ nearByFacilities.transits? nearByFacilities.transits.length:0 }})
购物中心 ({{ nearByFacilities.supermarkets? nearByFacilities.supermarkets.length:0 }})
医疗设施 ({{ nearByFacilities.hospitals? nearByFacilities.hospitals.length:0 }})
其他 ({{ nearByFacilities.pois? nearByFacilities.pois.length:0 }})
附近学区
学校名称 类型 Grades Catchment 距离
{{ item.school_type }} {{ item.school_grades }} {{ item.is_catchment? 'In Catchment': '' }} {{ item.distance }}
贷款计算器
$
$
$
%
%
预计付款

$

每周 双周 半月 每月

附近的类似在盘房源
附近的类似Open House房源
附近的投资推荐(降价)房源
附近的类似已成交房源
房源浏览历史记录
获取更多信息
剩余字数500