$1,699,900

125 Cranbrook Crescent, Vaughan, ON L4H 4G9

Kleinburg, Vaughan,

| | | 3,500 平方英尺 | 建筑年份: 6-15 |

Properties with this icon are courtesy of TRREB.

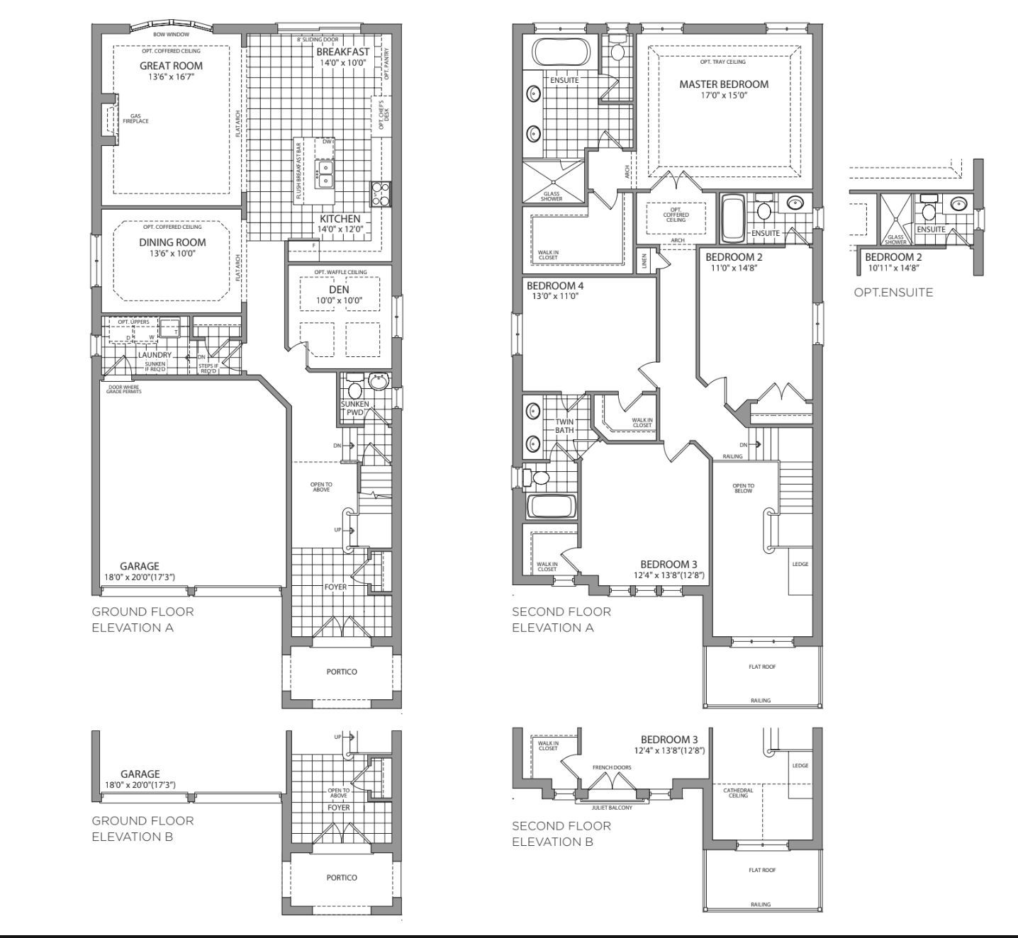
One of the finest 2-car garage detached homes currently available in Kleinburg, this stunning residence is beautifully situated on a premium ravine lot offering breathtaking natural views and ultimate privacy.This exceptional home features 4 spacious bedrooms and 3 full bathrooms on the second floor, including walk-in closets in every bedroom, and an elegant open-to-above foyer filled with natural light from oversized windows throughout the home.The main floor boasts a highly desirable open-concept layout with an office space, a large family room, and a modern gourmet kitchen featuring high-end appliances and a 10-foot oversized island. Walk out to a large deck overlooking the ravine, perfect for entertaining or relaxing in a serene setting.The home is loaded with upgrades including gleaming hardwood and porcelain floors, oak staircase with wrought-iron pickets, soaring high ceilings, and extensive pot lighting throughout.The fully finished basement offers a complete 2-bedroom in-law suite with full bathroom, separate laundry, and a walk-out / separate entrance from the backyard, making it ideal for extended family. Located in a highly sought-after neighbourhood, just minutes from the new Longo's plaza, Highway 427, Vaughan Metropolitan Centre (20 minutes), and Pearson Airport (15 minutes) - this home offers unmatched convenience and lifestyle.A truly rare offering combining luxury, space, income potential, and an unbeatable ravine location - GOLD PARK built this is a must-see home.

翻译

房屋信息
MLS®: N12698552
上盘公司 RE/MAX MILLENNIUM REAL ESTATE
卧室 6
洗手间 5
地下室 1
室内面积 3000-3500 平方英尺
土地面积 4070 平方英尺
风格 2-Storey
最后更新 2026-01-15
物业属性 独立屋
挂盘价格 $1,699,900
单位价格 $486/平方英尺
地税额度 $7,535/年
建造年份 6-15
更多信息
外部装修
非露天车位 2
车位总数 4
供水方式 Municipal
基建 Sewer
详细描述
    位置和一般信息
  • HoldoverDays: 90
  • 建筑样式: 2-Storey
  • 房屋种类: Residential Freehold
  • 房屋子类: Detached
  • DirectionFaces: West
  • GarageType: Attached
  • 路线: Baron St/Major McKenzie
  • 税收和 HOA 信息
  • 纳税年度: 2025
  • 停车
  • 停车位特点: Available
  • ParkingSpaces: 4
  • 停车位总数: 6
内部和外部特点
    洗手间信息
  • WashroomsType1: 1
  • WashroomsType1Level: Main
  • WashroomsType2: 1
  • WashroomsType2Level: Upper
  • WashroomsType3: 1
  • WashroomsType3Level: Upper
  • WashroomsType4: 1
  • WashroomsType4Level: Upper
  • WashroomsType5: 1
  • WashroomsType5Level: Basement
  • 卧室信息
  • BedroomsAboveGrade: 4
  • BedroomsBelowGrade: 2
  • 内部特点
  • 壁炉总数: 1
  • 内部特点: Auto Garage Door Remote, Carpet Free, In-Law Capability, In-Law Suite, Storage, Storage Area Lockers
  • 地下室: Finished with Walk-Out, Separate Entrance
  • Cooling: Central Air
  • HeatSource: Gas
  • HeatType: Forced Air
  • LaundryLevel: Main Level
  • 外部特点
  • ConstructionMaterials: Brick
  • 外部特点: Deck, Lighting, Year Round Living, Backs On Green Belt, Privacy
  • 屋顶: Shingles
  • 泳池特点: None
房屋
    公共服务
  • 下水道: Sewer
  • 水源: Water System
  • 地产及评估
  • 基建详情: Concrete
  • 地块信息
  • 地块号: 033222877
  • LotSizeUnits: Feet
  • LotDepth: 101.71
  • LotWidth: 40.02
  • Others
  • PropertyFeatures: Greenbelt/Conservation, Ravine
销售历史
地图与附近设施
地图
附近概况
公共交通 ({{ nearByFacilities.transits? nearByFacilities.transits.length:0 }})
购物中心 ({{ nearByFacilities.supermarkets? nearByFacilities.supermarkets.length:0 }})
医疗设施 ({{ nearByFacilities.hospitals? nearByFacilities.hospitals.length:0 }})
其他 ({{ nearByFacilities.pois? nearByFacilities.pois.length:0 }})
开放日
2026-01-18 02:00 PM - 04:00 PM
附近学区
学校名称 类型 Grades Catchment 距离
{{ item.school_type }} {{ item.school_grades }} {{ item.is_catchment? 'In Catchment': '' }} {{ item.distance }}
贷款计算器
$
$
$
%
%
预计付款

$

每周 双周 半月 每月

城市概况
附近的类似在盘房源
附近的类似Open House房源
附近的投资推荐(降价)房源
附近的类似已成交房源
房源浏览历史记录
获取更多信息
剩余字数500