$2,799,000

60 Hiltz Avenue, Toronto E01, ON M4L 2N5

South Riverdale, Toronto,

| | 2,500 sq.ft. |

Properties with this icon are courtesy of TRREB.

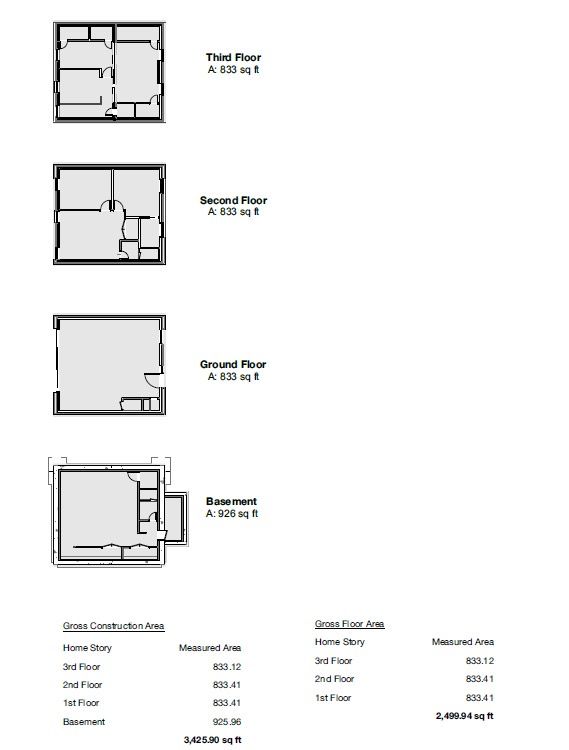
Featured by BlogTO as "Like Living in the Future." 60 Hiltz is a custom-built, all-electric home on a wide, quiet, tree-lined street steps from Greenwood Park and Queen East. 3+1 bed, 5 bath, 7 Juliet balconies, covered carport with EV rough-in, over 3,000 sf. Step inside to ~10' ceilings and a bright open kitchen-dining-family room anchored by a honed marble fireplace. Scavolini kitchen with 8-foot quartz island, Gaggenau fridge and induction cooktop, Monogram wall oven, Bosch dishwasher, Faber hood. Up to the second floor: two large bedrooms with two full baths and Scavolini closets, dedicated office, and laundry. The third-floor primary suite opens to CN Tower views, 5-pc ensuite with stone soaking tub, and gorgeous dressing area with custom millwork. Below grade: open-concept 900+ sf level with full bath and 8-foot ceilings - guest suite, media room, gym, or play space. Built for health and comfort: all-electric means zero combustion, no indoor air pollution. HEPA-filtered fresh air 24/7 via backed-up ERV. Passive House-certified triple-pane floor-to-ceiling windows flood every room with light and retain 3X more heat than standard glass. Heated floors throughout. Motorized Hunter Douglas blinds. Built to save: High Performance building envelope and cold-climate heat pump cuts heating and cooling costs vs. code-built homes. German heat pump hot water tank uses 3X less energy than conventional. 16 solar panels power the home and sell surplus to the grid. Rare islanding keeps solar running during outages. 20 kWh battery backs up sump pump, fridge, ERV, WiFi, lighting, HWT, and plug loads. Carport ready for 10 more panels. Built to protect: Bone Structure steel frame, non-combustible brick and metal exterior, laminated security glazing, 7-point locking windows, steel security door. Climate-resilient and break-in resistant. You cannot replicate this build at this price. Riverdale CI and Duke of Connaught catchments. 10 min by bike to the Beaches.

Property Info
MLS®: E12965658
Listing Courtesy of HARVEY KALLES REAL ESTATE LTD.
Total Bedrooms 4
Total Bathrooms 5
Basement 1
Floor Space 2000-2500 sq.ft.
Lot Size 2880 sq.ft.
Style 3-Storey
Last Updated 2026-04-07
Property Type House
Listed Price $2,799,000
Unit Pricing $1,120/sq.ft.
Tax Estimate $10,293/Year
Rooms
More Details
Exterior Finish Brick, Metal/Steel Siding
Parking Cover 1
Water Supply Municipal
Foundation Sewer
Summary
    Location and General Information
  • HoldoverDays: 90
  • Architectural Style: 3-Storey
  • Property Type: Residential Freehold
  • Property Sub Type: Detached
  • DirectionFaces: West
  • GarageType: Carport
  • Directions: Greenwood Ave & Queen St East
  • Taxes and HOA Information
  • Tax Year: 2025
  • Parking
  • Parking Features: Mutual
  • Parking Total: 1
Interior and Exterior Features
    Bathrooms Information
  • WashroomsType1: 1
  • WashroomsType1Level: Main
  • WashroomsType2: 1
  • WashroomsType2Level: Lower
  • WashroomsType3: 1
  • WashroomsType3Level: Second
  • WashroomsType4: 1
  • WashroomsType4Level: Second
  • WashroomsType5: 1
  • WashroomsType5Level: Third
  • Bedrooms Information
  • BedroomsAboveGrade: 3
  • BedroomsBelowGrade: 1
  • Interior Features
  • Fireplaces Total: 1
  • Interior Features: Air Exchanger, Built-In Oven, Carpet Free, Countertop Range, ERV/HRV, Separate Heating Controls, Separate Hydro Meter, Sewage Pump, Solar Owned, Storage, Sump Pump, Ventilation System, Water Heater Owned, Water Meter
  • Basement: Full, Finished
  • Cooling: Central Air
  • HeatSource: Electric
  • HeatType: Heat Pump
  • LaundryLevel: Upper Level
  • Exterior Features
  • ConstructionMaterials: Brick, Metal/Steel Siding
  • Exterior Features: Canopy, Landscaped, Patio
  • Roof: Membrane, Metal
  • Pool Features: None
Property
    Utilities
  • Sewer: Sewer
  • Property and Assessments
  • Foundation Details: Concrete
  • Lot Information
  • Parcel Number: 210410189
  • LotSizeUnits: Feet
  • LotDepth: 80
  • LotWidth: 36
  • Others
  • PropertyFeatures: Fenced Yard, Greenbelt/Conservation, Park, School
Sold History
MAP & Nearby Facilities (The data is not provided by TRREB)
Map
Nearby Facilities
Public Transit ({{ nearByFacilities.transits? nearByFacilities.transits.length:0 }})
SuperMarket ({{ nearByFacilities.supermarkets? nearByFacilities.supermarkets.length:0 }})
Hospital ({{ nearByFacilities.hospitals? nearByFacilities.hospitals.length:0 }})
Other ({{ nearByFacilities.pois? nearByFacilities.pois.length:0 }})
OPEN HOUSES (The data is not provided by TRREB)
2026-04-19 02:00 PM - 04:00 PM
2026-04-26 02:00 PM - 04:00 PM
School Catchments
School Name Type Grades Catchment Distance
{{ item.school_type }} {{ item.school_grades }} {{ item.is_catchment? 'In Catchment': '' }} {{ item.distance }}
Mortgage Calculator (The data is not provided by TRREB)
$
$
$
%
%
Estimated Payments

$

Weekly Bi Weekly Semi Monthly Monthly

City Introduction
Nearby Similar Active listings
Nearby Open House listings
Nearby Price Reduced listings
Nearby Similar Listings Closed
MLS Listing Browsing History
Obtain More Info
500 word remaining