$1,399,000

131 Daugaard Avenue, Brant, ON N3L 0L6

Paris, Brant,

| | | 3,500 sq.ft. |

Properties with this icon are courtesy of TRREB.

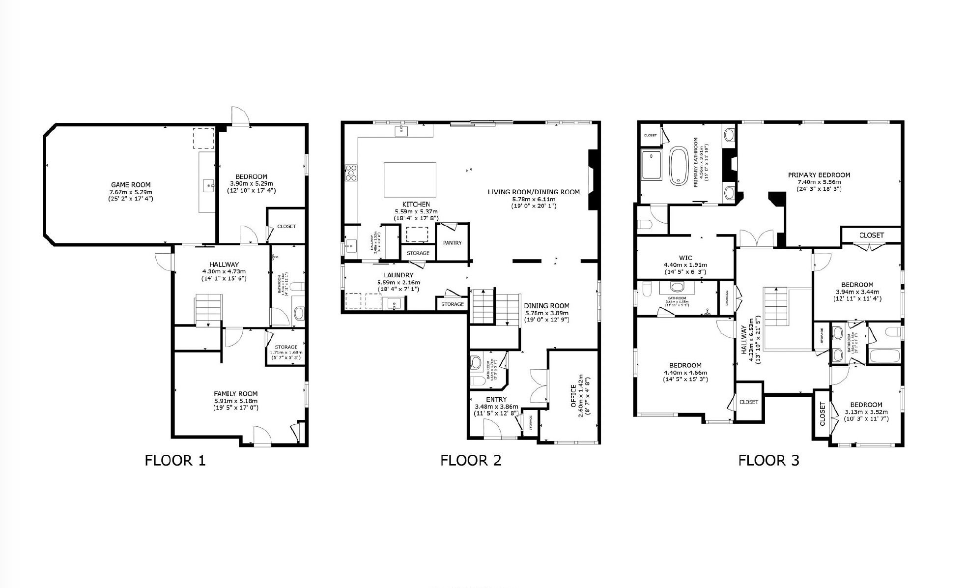
If luxury living had an address, it would be 131 Daugaard Ave in Paris. This 6-bed, 5-bath executive home offers around 5000 sq.ft. of finished living space and over $500,000 in premium upgrades, designed for families who refuse to compromise on quality, comfort, or lifestyle. Step inside the grand foyer with soaring ceilings and a custom open-riser staircase a showpiece that sets the tone for the craftsmanship throughout. The main level features 11' ceiling, wide-plank hardwood, elegant millwork, designer lighting, and a spacious open-concept layout perfect for entertaining. The coffered dining room ceiling with cove lighting adds a touch of architectural artistry and is perfect for family gatherings.The chef's kitchen is a standout, equipped with Wolf + Sub-Zero appliances, Caesarstone quartz counters, a large island, upgraded cabinetry, and butler's walk-thru pantry. The living room is anchored by a modern gas fireplace and oversized windows that flood the space with natural light.Upstairs, the primary suite is a true retreat with a tray ceiling, walk-in closet, makeup vanity and a spa-like ensuite featuring a freestanding tub, glass shower, double sided fireplace and double sinks. Second Bedroom features its own ensuite and Bedrooms three & four share a stylish Jack & Jill bathroom, ensuring every family member has comfort and privacy. The fully finished basement is an entertainer's paradise, featuring a spacious games room, sleek bar area, and an open concept layout-the perfect setting for movie nights, or celebrations, two additional bedrooms, a full bath. The separate basement entrance provides flexibility for a future in-law suite or income potential perfect for multigenerational living. Located in one of Paris' most sought-after neighbourhoods, this property offers the perfect blend of luxury living and small-town charm. Enjoy nearby trails, top-rated schools, parks, cafés, and the scenic Grand River - all just minutes away.

Property Info
MLS®: X12534124
Listing Courtesy of Sotheby's International Realty Canada, Brokerage
Total Bedrooms 6
Total Bathrooms 5
Basement 1
Floor Space 3000-3500 sq.ft.
Lot Size 6471 sq.ft.
Style 2-Storey
Last Updated 2025-11-11
Property Type House
Listed Price $1,399,000
Unit Pricing $400/sq.ft.
Tax Estimate $7,924/Year
Rooms
More Details
Exterior Finish Brick Veneer, Concrete
Parking Cover 3
Parking Total 3
Water Supply Municipal
Foundation Sewer
Summary
    Location and General Information
  • HoldoverDays: 120
  • Architectural Style: 2-Storey
  • Property Type: Residential Freehold
  • Property Sub Type: Detached
  • DirectionFaces: South
  • GarageType: Attached
  • Directions: Turn towards King Edward St, Rest Acres Rd and then onto Daugaard Ave.
  • Taxes and HOA Information
  • Tax Year: 2025
  • Parking
  • Parking Features: Private Double
  • ParkingSpaces: 3
  • Parking Total: 6
Interior and Exterior Features
    Bathrooms Information
  • WashroomsType1: 1
  • WashroomsType1Level: Basement
  • WashroomsType2: 1
  • WashroomsType2Level: Main
  • WashroomsType3: 2
  • WashroomsType3Level: Second
  • WashroomsType4: 1
  • WashroomsType4Level: Second
  • Bedrooms Information
  • BedroomsAboveGrade: 4
  • BedroomsBelowGrade: 2
  • Interior Features
  • Interior Features: Auto Garage Door Remote, Countertop Range, In-Law Suite, ERV/HRV, Water Heater, Water Softener
  • Basement: Full, Finished
  • Cooling: Central Air
  • HeatSource: Gas
  • HeatType: Forced Air
  • Exterior Features
  • ConstructionMaterials: Brick Veneer, Concrete
  • Roof: Asphalt Shingle
  • Pool Features: None
Property
    Utilities
  • Sewer: Sewer
  • Property and Assessments
  • Foundation Details: Poured Concrete
  • Lot Information
  • Parcel Number: 320531100
  • LotSizeUnits: Feet
  • LotDepth: 115.91
  • LotWidth: 55.83
  • Others
  • PropertyFeatures: Golf, Hospital, Park, Place Of Worship, School, River/Stream
Sold History
MAP & Nearby Facilities (The data is not provided by TRREB)
Map
Nearby Facilities
Public Transit ({{ nearByFacilities.transits? nearByFacilities.transits.length:0 }})
SuperMarket ({{ nearByFacilities.supermarkets? nearByFacilities.supermarkets.length:0 }})
Hospital ({{ nearByFacilities.hospitals? nearByFacilities.hospitals.length:0 }})
Other ({{ nearByFacilities.pois? nearByFacilities.pois.length:0 }})
School Catchments
School Name Type Grades Catchment Distance
{{ item.school_type }} {{ item.school_grades }} {{ item.is_catchment? 'In Catchment': '' }} {{ item.distance }}
Mortgage Calculator (The data is not provided by TRREB)
$
$
$
%
%
Estimated Payments

$

Weekly Bi Weekly Semi Monthly Monthly

Nearby Similar Active listings
Nearby Open House listings
Nearby Price Reduced listings
Nearby Similar Listings Closed
MLS Listing Browsing History
Obtain More Info
500 word remaining