$619,000

2375 County Rd 17 Road, Champlain, ON K0B 1K0

614 - Champlain Twp, Champlain,

| | 16  | 1,100 sq.ft. | Year Built: 31-50 |

Properties with this icon are courtesy of TRREB.

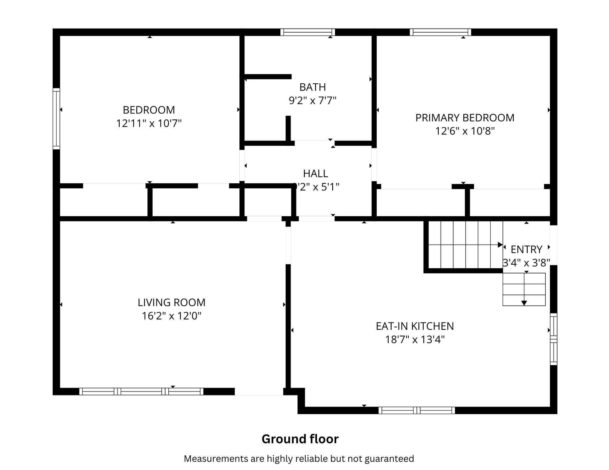
This is 2375 County Road 17 - Champlain twsp. Nearly 50 Acres. Exceptional Workshop. A Property Built for Independence. For those who value space, independence, and the ability to build a life on their own terms, this property delivers something increasingly rare. Set on nearly 50 acres in Champlain Township, it offers privacy, breathing room, and meaningful infrastructure-just minutes from town, yet completely removed from the noise. The home is a solid bungalow with practical and spacious 2+2 bedroom layout, featuring a finished lower level with separate entrance, ideal for flexible living arrangements. Over the past few years, key updates have been completed, including new main-floor windows, an upgraded bathroom, and a modern water purification system, enhancing comfort and everyday functionality. A defining feature of the property is the impressive 60' x 54' detached garage, complete with high ceilings, oversized doors, and its own 200-amp electrical service-a rare and valuable asset well-suited for tradespeople, hobbyists, or anyone needing serious workspace or storage. Outdoors, the land offers a mix of cleared and treed areas, a small private pond, crabapple orchard, chicken coop -providing excellent potential for hobby farming, recreation, or simply enjoying the quiet and freedom of country living. This is a property with strong fundamentals, valuable infrastructure, and long-term potential, priced to reflect its current presentation while offering a compelling opportunity for buyers who recognize value beyond surface details.

Property Info
MLS®: X12706880
Listing Courtesy of ROYAL LEPAGE PERFORMANCE REALTY
Total Bedrooms 4
Total Bathrooms 1
Basement 1
Floor Space 700-1100 sq.ft.
Lot Size 2111277 sq.ft.
Style Bungalow
Last Updated 2026-01-18
Property Type House
Listed Price $619,000
Unit Pricing $563/sq.ft.
Tax Estimate $3,546/Year
Year Built 31-50
Rooms
More Details
Exterior Finish Brick Front, Aluminum Siding
Parking Cover 6
Parking Total 16
Water Supply Well
Foundation Septic
Summary
    Location and General Information
  • HoldoverDays: 120
  • Architectural Style: Bungalow
  • Property Type: Residential Freehold
  • Property Sub Type: Detached
  • DirectionFaces: South
  • GarageType: Detached
  • Directions: On county Rd 17 between Longueil st and Blue corner rd
  • Taxes and HOA Information
  • Tax Year: 2025
  • Parking
  • Parking Features: Circular Drive, Private
  • ParkingSpaces: 16
  • Parking Total: 10
Interior and Exterior Features
    Bathrooms Information
  • WashroomsType1: 1
  • WashroomsType1Level: Ground
  • Bedrooms Information
  • BedroomsAboveGrade: 2
  • BedroomsBelowGrade: 2
  • Interior Features
  • Fireplaces Total: 1
  • Interior Features: Auto Garage Door Remote, Carpet Free, Primary Bedroom - Main Floor, Sump Pump, Water Heater Owned, Water Purifier, Water Treatment
  • Basement: Finished, Separate Entrance
  • Cooling: None
  • HeatSource: Electric
  • HeatType: Baseboard
  • LaundryLevel: Lower Level
  • Exterior Features
  • ConstructionMaterials: Brick Front, Aluminum Siding
  • Exterior Features: Privacy, Private Pond, Recreational Area, Year Round Living
  • Roof: Asphalt Shingle
  • Pool Features: None
Property
    Utilities
  • Sewer: Septic
  • Water Source: Drilled Well, Water System
  • Property and Assessments
  • Foundation Details: Poured Concrete
  • Topography: Flat, Partially Cleared
  • Lot Information
  • Parcel Number: 541440087
  • LotSizeUnits: Feet
  • LotDepth: 3627
  • LotWidth: 582.1
  • Others
  • PropertyFeatures: Part Cleared
Sold History
MAP & Nearby Facilities (The data is not provided by TRREB)
Map
Nearby Facilities
Public Transit ({{ nearByFacilities.transits? nearByFacilities.transits.length:0 }})
SuperMarket ({{ nearByFacilities.supermarkets? nearByFacilities.supermarkets.length:0 }})
Hospital ({{ nearByFacilities.hospitals? nearByFacilities.hospitals.length:0 }})
Other ({{ nearByFacilities.pois? nearByFacilities.pois.length:0 }})
School Catchments
School Name Type Grades Catchment Distance
{{ item.school_type }} {{ item.school_grades }} {{ item.is_catchment? 'In Catchment': '' }} {{ item.distance }}
Mortgage Calculator (The data is not provided by TRREB)
$
$
$
%
%
Estimated Payments

$

Weekly Bi Weekly Semi Monthly Monthly

Nearby Similar Active listings
Nearby Open House listings
Nearby Price Reduced listings
Nearby Similar Listings Closed
MLS Listing Browsing History
Obtain More Info
500 word remaining