$725,000

26 Redwood Drive, Belleville, ON K8N 0K4

Thurlow Ward, Belleville,

| | | 1,500 sq.ft. | Year Built: 6-15 |

Properties with this icon are courtesy of TRREB.

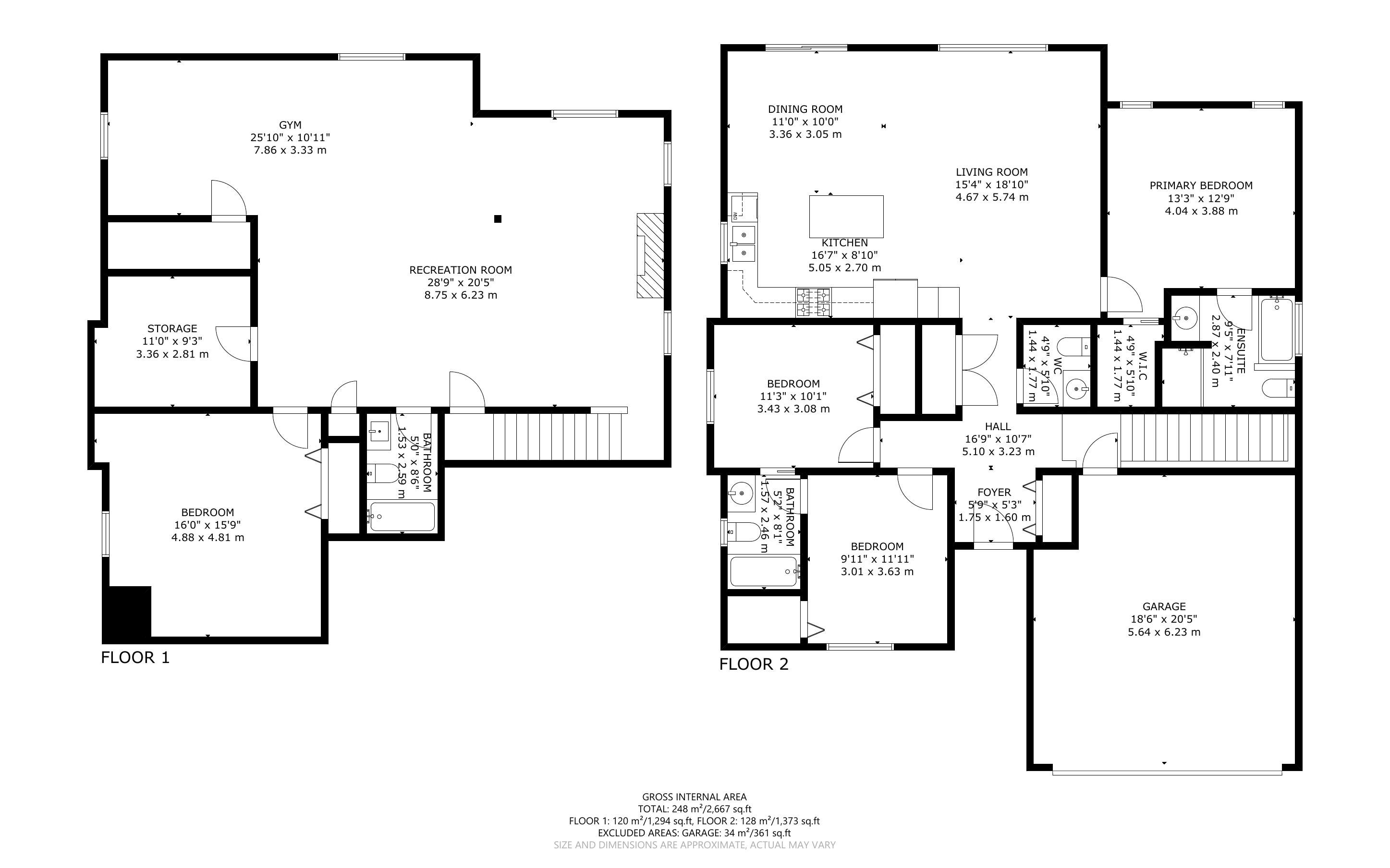
If you're looking to live in a subdivision, this one truly takes the cake for style, space, and location. Adjacent to and backing onto green space in the popular Heritage Park community, this beautiful bungalow offers a smart, functional floor plan with no compromises. Ideal for couples, families, or retirees, the home features a bright, open-concept main living area with 9' ceilings and plenty of natural light. The primary bedroom suite is privately tucked away at the back of the home, overlooking the park and your professionally landscaped yard. Main floor laundry adds everyday convenience, along with a powder room thoughtfully located near both the foyer and garage entrance. Two additional bedrooms on the main level share a well-designed Jack-and-Jill full bath. The fully finished lower level is impressively bright with large windows and includes a spacious recreation/family room with a cozy gas fireplace, a full bedroom and bathroom, and room to add another bedroom if desired. Outside, enjoy landscaped front and back yards, a large deck, hot tub, fully fenced yard, and gate access directly to the green space - perfect for relaxing evenings and crisp winter nights alike. Located just minutes to shopping, schools, trails, and Quinte Sports & Wellness Centre, and quick access to Highway 401! Heritage Park is known for its quiet streets, walkable green spaces, and proximity to all Belleville amenities. Fall in love with city living in a setting that still feels peaceful and connected to nature.

Property Info
MLS®: X12766712
Listing Courtesy of ROYAL LEPAGE PROALLIANCE REALTY
Total Bedrooms 4
Total Bathrooms 4
Basement 1
Floor Space 1100-1500 sq.ft.
Lot Size 470 sq.ft.
Style Bungalow
Last Updated 2026-02-06
Property Type House
Listed Price $725,000
Unit Pricing $483/sq.ft.
Tax Estimate $5,047/Year
Year Built 6-15
Rooms
More Details
Exterior Finish Brick, Vinyl Siding
Parking Cover 2
Parking Total 2
Water Supply Municipal
Foundation Sewer
Summary
    Location and General Information
  • HoldoverDays: 90
  • Architectural Style: Bungalow
  • Property Type: Residential Freehold
  • Property Sub Type: Detached
  • DirectionFaces: North
  • GarageType: Attached
  • Directions: Maitland east to Farnham north to Redwood Drive
  • Taxes and HOA Information
  • Tax Year: 2025
  • Parking
  • Parking Features: Private Double
  • ParkingSpaces: 2
  • Parking Total: 4
Interior and Exterior Features
    Bathrooms Information
  • WashroomsType1: 1
  • WashroomsType1Level: Main
  • WashroomsType2: 1
  • WashroomsType2Level: Main
  • WashroomsType3: 1
  • WashroomsType3Level: Main
  • WashroomsType4: 1
  • WashroomsType4Level: Lower
  • Bedrooms Information
  • BedroomsAboveGrade: 3
  • BedroomsBelowGrade: 1
  • Interior Features
  • Fireplaces Total: 1
  • Interior Features: Auto Garage Door Remote, In-Law Capability, Primary Bedroom - Main Floor, ERV/HRV
  • Basement: Full, Finished
  • Cooling: Central Air
  • HeatSource: Gas
  • HeatType: Forced Air
  • LaundryLevel: Main Level
  • Exterior Features
  • ConstructionMaterials: Brick, Vinyl Siding
  • Exterior Features: Deck, Backs On Green Belt, Privacy
  • Roof: Asphalt Shingle
  • Pool Features: None
Property
    Utilities
  • Sewer: Sewer
  • Property and Assessments
  • Foundation Details: Poured Concrete
  • Lot Information
  • Parcel Number: 404311182
  • LotSizeUnits: Metres
  • LotDepth: 30.55
  • LotWidth: 15.37
  • Others
  • PropertyFeatures: Rec./Commun.Centre, School Bus Route, Park, Clear View, River/Stream
Sold History
MAP & Nearby Facilities (The data is not provided by TRREB)
Map
Nearby Facilities
Public Transit ({{ nearByFacilities.transits? nearByFacilities.transits.length:0 }})
SuperMarket ({{ nearByFacilities.supermarkets? nearByFacilities.supermarkets.length:0 }})
Hospital ({{ nearByFacilities.hospitals? nearByFacilities.hospitals.length:0 }})
Other ({{ nearByFacilities.pois? nearByFacilities.pois.length:0 }})
OPEN HOUSES (The data is not provided by TRREB)
2026-02-07 03:00 PM - 04:00 PM
School Catchments
School Name Type Grades Catchment Distance
{{ item.school_type }} {{ item.school_grades }} {{ item.is_catchment? 'In Catchment': '' }} {{ item.distance }}
Mortgage Calculator (The data is not provided by TRREB)
$
$
$
%
%
Estimated Payments

$

Weekly Bi Weekly Semi Monthly Monthly

Nearby Similar Active listings
Nearby Open House listings
Nearby Price Reduced listings
Nearby Similar Listings Closed
MLS Listing Browsing History
Obtain More Info
500 word remaining