$599,900

12 Arthur Street, London East, ON N5Y 3B9

East F, London East,

| | | 1,500 sq.ft. |

Properties with this icon are courtesy of TRREB.

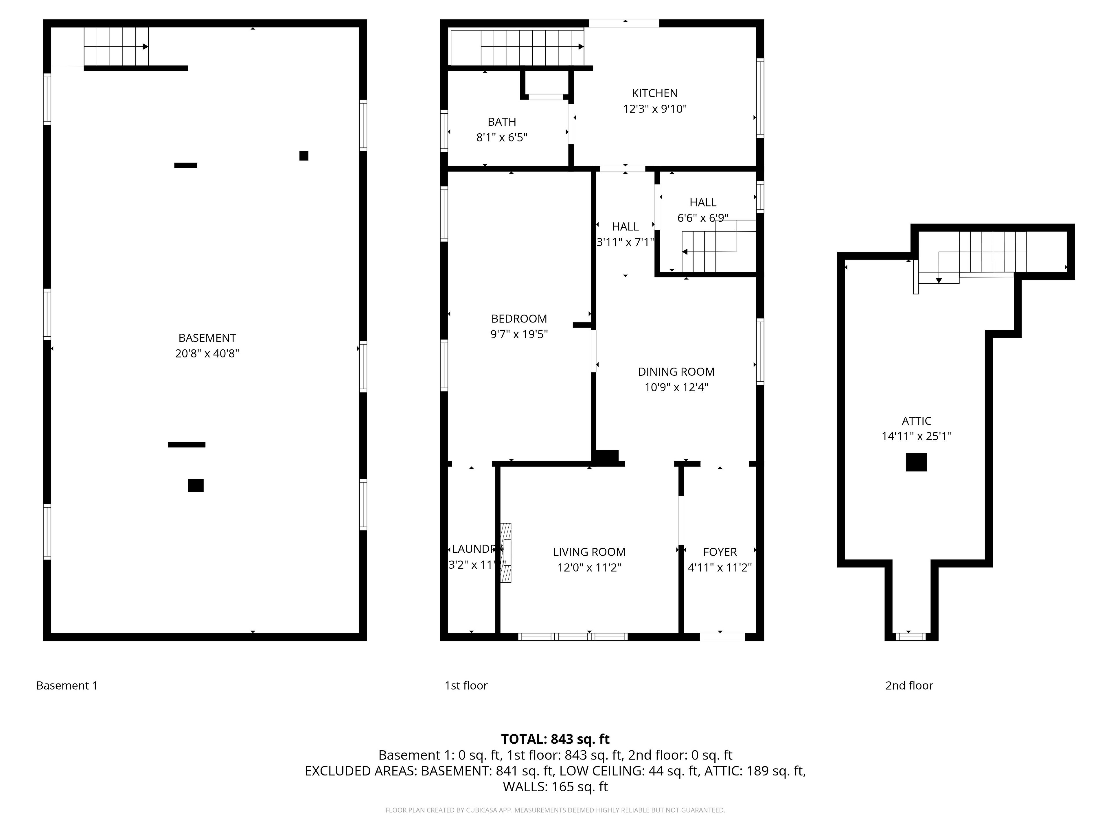
Welcome to 12 Arthur St, a beautifully reimagined home that blends thoughtful design with elevated modern finishes in a central location. Perfect for downsizers or young professionals who want the freedom of a detached home without the constraints of condo living, this property offers style, function, and flexibility in equal measure.The main floor features a stunning primary bedroom retreat with convenient access to a walk in closet complete with integrated laundry, making everyday living effortless. The spa inspired bathroom feels like a private resort, showcasing dramatic tile work, sleek fixtures, and a refined modern aesthetic designed to impress.At the heart of the home is a striking kitchen with contemporary cabinetry, quartz counters, and premium integrated features including a panel ready dishwasher, hidden microwave, and magic corner storage system that maximizes both function and clean design. Every detail has been carefully considered to create a seamless and elevated living experience. Wide plank flooring, curated lighting, and clean architectural lines carry throughout the home.Upstairs, the loft offers a versatile space currently used as a home office but easily adaptable as a bedroom, studio, or creative retreat. The basement provides excellent storage, keeping your main living areas uncluttered and organized.The exterior has been fully redone, enhancing both curb appeal and long term durability. Outside, enjoy a private backyard with mature trees and space to relax, entertain, or unwind.This is a rare opportunity to own a centrally located detached home with sleek design, efficient layout, and elevated finishes, perfect for those seeking low maintenance living without compromise.

Property Info
MLS®: X12825776
Listing Courtesy of THRIVE REALTY GROUP INC.
Total Bedrooms 2
Total Bathrooms 1
Basement 1
Floor Space 1100-1500 sq.ft.
Lot Size 4224 sq.ft.
Style 1 1/2 Storey
Last Updated 2026-02-27
Property Type House
Listed Price $599,900
Unit Pricing $400/sq.ft.
Tax Estimate $4,476/Year
Rooms
More Details
Exterior Finish Board & Batten
Parking Total 2
Water Supply Municipal
Foundation Sewer
Summary
    Location and General Information
  • HoldoverDays: 30
  • Architectural Style: 1 1/2 Storey
  • Property Type: Residential Freehold
  • Property Sub Type: Detached
  • DirectionFaces: North
  • GarageType: None
  • Directions: Heading north on William St turn right on aArthur St. Home is on the left hand side
  • Taxes and HOA Information
  • Tax Year: 2025
  • Parking
  • ParkingSpaces: 2
  • Parking Total: 2
Interior and Exterior Features
    Bathrooms Information
  • WashroomsType1: 1
  • Bedrooms Information
  • BedroomsAboveGrade: 2
  • Interior Features
  • Fireplaces Total: 1
  • Interior Features: Primary Bedroom - Main Floor, Water Heater
  • Basement: Unfinished
  • Cooling: Central Air
  • HeatSource: Gas
  • HeatType: Forced Air
  • Exterior Features
  • ConstructionMaterials: Board & Batten
  • Roof: Asphalt Shingle
  • Pool Features: None
Property
    Utilities
  • Sewer: Sewer
  • Property and Assessments
  • Foundation Details: Concrete Block
  • Lot Information
  • Parcel Number: 082780175
  • LotSizeUnits: Feet
  • LotDepth: 132
  • LotWidth: 32
  • Others
Sold History
MAP & Nearby Facilities (The data is not provided by TRREB)
Map
Nearby Facilities
Public Transit ({{ nearByFacilities.transits? nearByFacilities.transits.length:0 }})
SuperMarket ({{ nearByFacilities.supermarkets? nearByFacilities.supermarkets.length:0 }})
Hospital ({{ nearByFacilities.hospitals? nearByFacilities.hospitals.length:0 }})
Other ({{ nearByFacilities.pois? nearByFacilities.pois.length:0 }})
OPEN HOUSES (The data is not provided by TRREB)
2026-03-07 02:00 PM - 04:00 PM
School Catchments
School Name Type Grades Catchment Distance
{{ item.school_type }} {{ item.school_grades }} {{ item.is_catchment? 'In Catchment': '' }} {{ item.distance }}
Mortgage Calculator (The data is not provided by TRREB)
$
$
$
%
%
Estimated Payments

$

Weekly Bi Weekly Semi Monthly Monthly

Nearby Similar Active listings
Nearby Open House listings
Nearby Price Reduced listings
Nearby Similar Listings Closed
MLS Listing Browsing History
Obtain More Info
500 word remaining