$799,900

70986 B Line, Lambton Shores, ON N0M 1T0

Grand Bend, Lambton Shores,

| | 10  | 1,500 sq.ft. |

Properties with this icon are courtesy of TRREB.

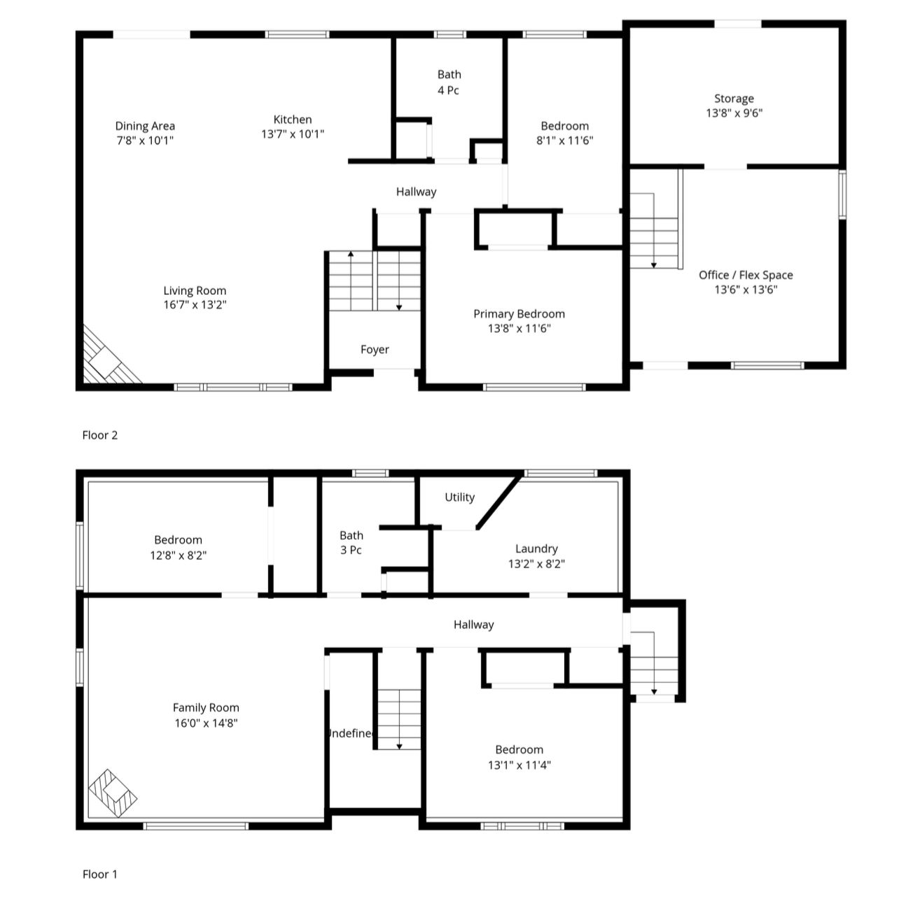
COUNTRY LIVING on 1.5 ACRES - AG4 ZONING - GRAND BEND - LOW TAXES! Discover the perfect blend of peaceful country living & modern convenience-just two minutes from Grand Bend's beaches, restaurants & shops. This beautifully updated 4-bedroom+separate office, 2-bath home sits on a private 1.5-acre lot surrounded by a perimeter of mature trees, offering space, privacy & tranquility. Step inside to a bright foyer with soaring two-storey ceilings & an oversized window that fills the space with natural light. The upper level features an inviting open-concept layout with a spacious living area centered around a cozy gas fireplace & large windows showcasing sweeping country views. The kitchen boasts new white countertops, matte black hardware, oversized black stainless sink & a picture window overlooking the deep backyard. The adjoining dining area is perfect for family gatherings or relaxed entertaining. Two comfortable bedrooms, including a generous primary, along with an updated 4-piece bath, complete the main floor. The partially above-grade lower level offers exceptional living space with a large rec room anchored by a gas stove, two more bedrooms, a 3-piece bath & a well-sized laundry area with ample storage. A bonus finished office or studio with a private entrance offers versatility for a home business, gym or guest suite, or could be converted back to a garage. Outside, the expansive 1.5-acre property offers endless possibilities-enjoy peaceful field views, a deep laneway with parking for up to ten vehicles & hookups for both a hot tub & generator. There's also space to build your dream shop, hobby barn or additional outbuildings to suit your lifestyle. Updates include a new heat pump, newer roof & siding, 200 AMP electrical service, sump pump with backup, professionally painted & modern lighting & fixtures-the list goes on. Zoned AG4, bring your horses, goats or chickens & still have room to expand! This property offers the best of both worlds-country & coastal!

Property Info
MLS®: X12834168
Listing Courtesy of CENTURY 21 FIRST CANADIAN CORP
Total Bedrooms 4
Total Bathrooms 2
Basement 1
Floor Space 1100-1500 sq.ft.
Lot Size 63000 sq.ft.
Style 2-Storey
Last Updated 2026-03-02
Property Type House
Listed Price $799,900
Unit Pricing $533/sq.ft.
Tax Estimate $2,936/Year
Rooms
More Details
Exterior Finish Vinyl Siding
Parking Total 10
Water Supply Municipal
Foundation Septic
Summary
    Location and General Information
  • HoldoverDays: 30
  • Architectural Style: 2-Storey
  • Property Type: Residential Freehold
  • Property Sub Type: Detached
  • DirectionFaces: East
  • GarageType: None
  • Directions: North on B Line
  • Taxes and HOA Information
  • Tax Year: 2025
  • Parking
  • Parking Features: Private Triple, Private
  • ParkingSpaces: 10
  • Parking Total: 10
Interior and Exterior Features
    Bathrooms Information
  • WashroomsType1: 1
  • WashroomsType1Level: Main
  • WashroomsType2: 1
  • WashroomsType2Level: Lower
  • Bedrooms Information
  • BedroomsAboveGrade: 4
  • Interior Features
  • Fireplaces Total: 2
  • Interior Features: In-Law Capability, Primary Bedroom - Main Floor, Storage, Sump Pump, Water Heater Owned
  • Basement: Full, Finished
  • Cooling: Other
  • HeatSource: Gas
  • HeatType: Heat Pump
  • Exterior Features
  • ConstructionMaterials: Vinyl Siding
  • Exterior Features: Deck, Landscaped, Lighting, Privacy, Patio, Porch Enclosed, Year Round Living
  • Roof: Shingles
  • Pool Features: None
Property
    Utilities
  • Sewer: Septic
  • Property and Assessments
  • Foundation Details: Poured Concrete
  • Topography: Dry, Flat
  • Lot Information
  • Parcel Number: 412490146
  • LotSizeUnits: Feet
  • LotDepth: 300
  • LotWidth: 210
  • Others
  • PropertyFeatures: Beach, Golf, Arts Centre, Clear View, Rec./Commun.Centre, School Bus Route
Sold History
MAP & Nearby Facilities (The data is not provided by TRREB)
Map
Nearby Facilities
Public Transit ({{ nearByFacilities.transits? nearByFacilities.transits.length:0 }})
SuperMarket ({{ nearByFacilities.supermarkets? nearByFacilities.supermarkets.length:0 }})
Hospital ({{ nearByFacilities.hospitals? nearByFacilities.hospitals.length:0 }})
Other ({{ nearByFacilities.pois? nearByFacilities.pois.length:0 }})
OPEN HOUSES (The data is not provided by TRREB)
2026-03-08 01:00 PM - 03:00 PM
School Catchments
School Name Type Grades Catchment Distance
{{ item.school_type }} {{ item.school_grades }} {{ item.is_catchment? 'In Catchment': '' }} {{ item.distance }}
Mortgage Calculator (The data is not provided by TRREB)
$
$
$
%
%
Estimated Payments

$

Weekly Bi Weekly Semi Monthly Monthly

Nearby Similar Active listings
Nearby Open House listings
Nearby Price Reduced listings
Nearby Similar Listings Closed
MLS Listing Browsing History
Obtain More Info
500 word remaining