$1,949,000

216 Rebecca Street, Oakville, ON L6K 1J9

1002 - CO Central, Oakville,

| | | 3,000 sq.ft. | Year Built: 6-15 |

Properties with this icon are courtesy of TRREB.

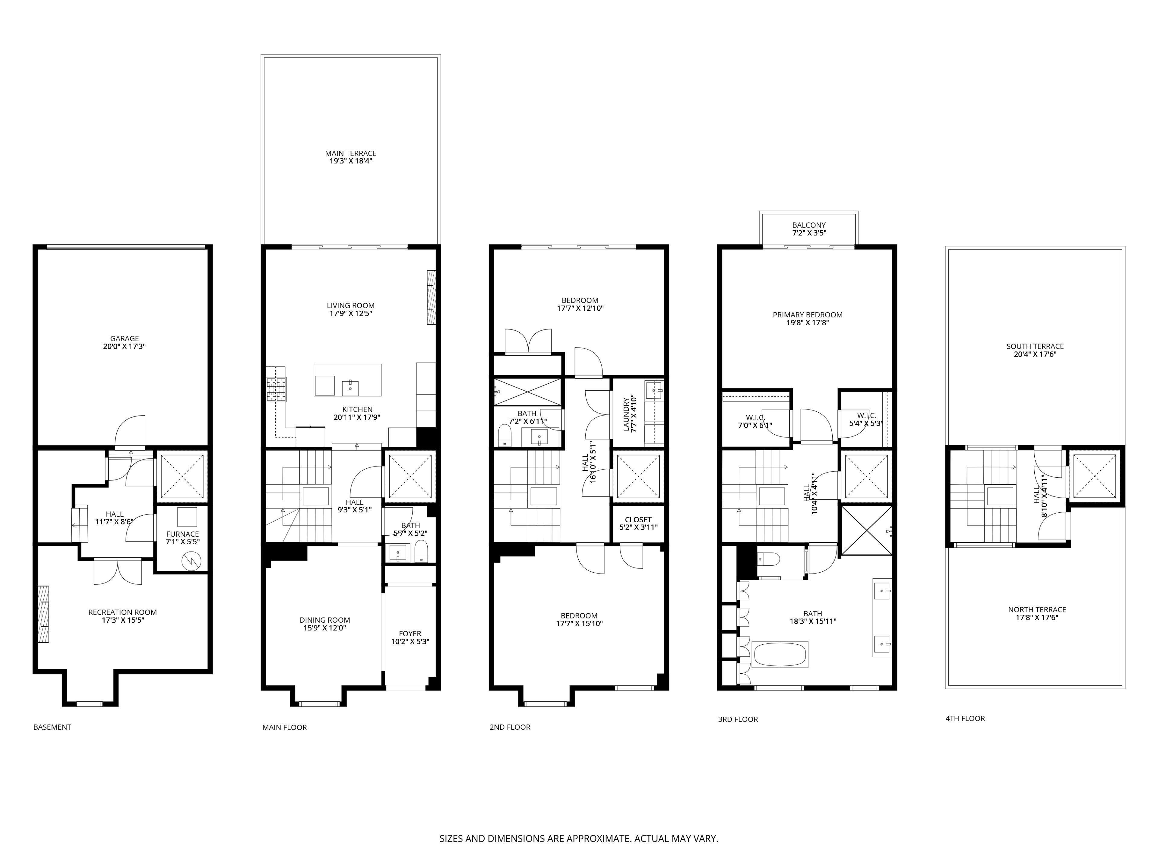
Freehold executive townhome living just steps from everyday amenities, downtown Oakville, and the lake! Offering 3 bedrooms and 3 bathrooms across 3100+ total square feet, this beautifully designed residence is ideal for right-sizers, professionals, or modern families seeking a low-maintenance lifestyle without sacrificing space or comfort. Rarely offered features include a private elevator, parking for four vehicles (including an attached double garage), and multiple outdoor living spaces. Luxuriously finished throughout with rich hardwood floors, quartz countertops, custom millwork, and two fireplaces, the home delivers a refined, boutique-hotel feel. The main level is designed for entertaining, featuring a formal dining room, gourmet kitchen with chef-grade appliances, and a living room that walks out to a large terrace - perfect for summer barbecues. Indoor-outdoor living continues above with both north and south-facing rooftop terraces, ideal for morning coffees or sunset cocktails. The second level offers two spacious bedrooms, a beautifully appointed main bathroom, and convenient laundry. The entire third floor is dedicated to a serene primary retreat with dual dressing rooms and a spa-inspired five-piece ensuite showcasing a statement freestanding tub and stunning tilework. The finished lower level provides a versatile flex space ideal for a media room, home office, or gym. Enjoy a Saturday morning stroll to Kerr Street Café, window shopping downtown, or lakeside walks with your dog. This exceptionally walkable location is also moments from the Oakville GO Station and the QEW, making commuting and Toronto events effortless. 216 Rebecca Street isn't just a home - it's a (fabulous) lifestyle!

Property Info
MLS®: W12668404
Listing Courtesy of Royal LePage Royal City Realty
Total Bedrooms 3
Total Bathrooms 3
Basement 1
Floor Space 2500-3000 sq.ft.
Lot Size 1471 sq.ft.
Style 3-Storey
Last Updated 2026-01-06
Property Type Townhouse
Listed Price $1,949,000
Unit Pricing $650/sq.ft.
Tax Estimate $7,604/Year
Year Built 6-15
Rooms
More Details
Exterior Finish Brick, Stone
Parking Cover 2
Parking Total 2
Water Supply Municipal
Foundation Sewer
Summary
    Location and General Information
  • HoldoverDays: 60
  • Architectural Style: 3-Storey
  • Property Type: Residential Freehold
  • Property Sub Type: Att/Row/Townhouse
  • DirectionFaces: South
  • GarageType: Attached
  • Directions: East of Dorval
  • Taxes and HOA Information
  • Tax Year: 2025
  • Parking
  • Parking Features: Private Double
  • ParkingSpaces: 2
  • Parking Total: 4
Interior and Exterior Features
    Bathrooms Information
  • WashroomsType1: 1
  • WashroomsType1Level: Main
  • WashroomsType2: 1
  • WashroomsType2Level: Second
  • WashroomsType3: 1
  • WashroomsType3Level: Third
  • Bedrooms Information
  • BedroomsAboveGrade: 3
  • Interior Features
  • Fireplaces Total: 2
  • Interior Features: Auto Garage Door Remote, Water Heater
  • Basement: Full, Finished
  • Cooling: Central Air
  • HeatSource: Gas
  • HeatType: Forced Air
  • LaundryLevel: Upper Level
  • Exterior Features
  • ConstructionMaterials: Brick, Stone
  • Exterior Features: Hot Tub, Lighting, Patio
  • Roof: Asphalt Rolled
  • Pool Features: None
Property
    Utilities
  • Sewer: Sewer
  • Property and Assessments
  • Foundation Details: Concrete
  • Lot Information
  • Parcel Number: 248210184
  • LotSizeUnits: Feet
  • LotDepth: 79.51
  • LotWidth: 18.5
  • Others
  • PropertyFeatures: Lake/Pond, Library, Marina, Public Transit, Rec./Commun.Centre, Waterfront
Sold History
MAP & Nearby Facilities (The data is not provided by TRREB)
Map
Nearby Facilities
Public Transit ({{ nearByFacilities.transits? nearByFacilities.transits.length:0 }})
SuperMarket ({{ nearByFacilities.supermarkets? nearByFacilities.supermarkets.length:0 }})
Hospital ({{ nearByFacilities.hospitals? nearByFacilities.hospitals.length:0 }})
Other ({{ nearByFacilities.pois? nearByFacilities.pois.length:0 }})
School Catchments
School Name Type Grades Catchment Distance
{{ item.school_type }} {{ item.school_grades }} {{ item.is_catchment? 'In Catchment': '' }} {{ item.distance }}
Mortgage Calculator (The data is not provided by TRREB)
$
$
$
%
%
Estimated Payments

$

Weekly Bi Weekly Semi Monthly Monthly

City Introduction
Nearby Similar Active listings
Nearby Open House listings
Nearby Price Reduced listings
Nearby Similar Listings Closed
MLS Listing Browsing History
Obtain More Info
500 word remaining