$849,000

$50,000

350 Doon Valley Drive 1G, Kitchener, ON N2P 2M9

, Kitchener,

| | | 2,249 sq.ft. |

Properties with this icon are courtesy of TRREB.

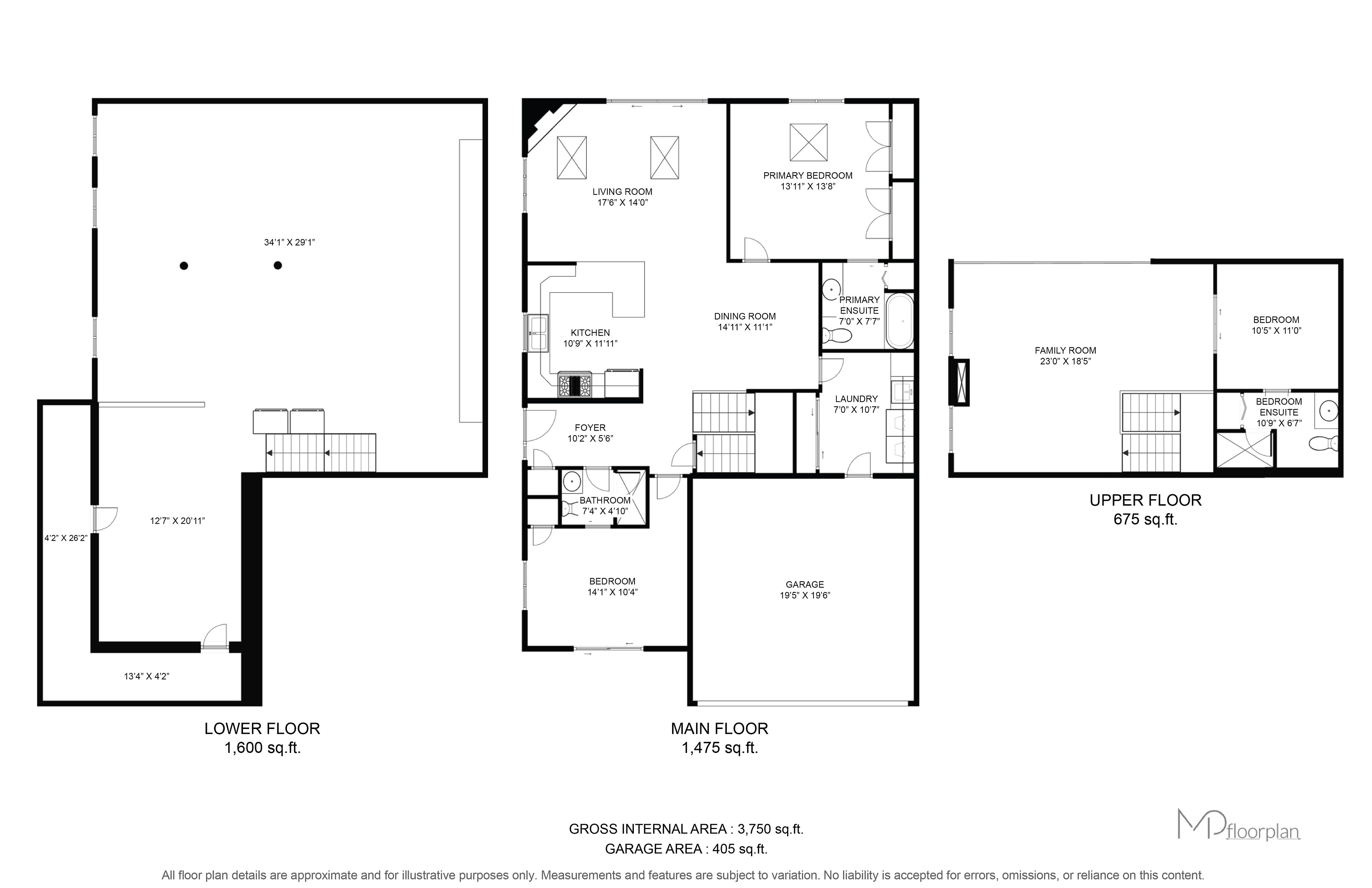
Welcome to 350 Doon Valley Drive, Suite 1G, an executive end-unit bungaloft in the prestigious Mill Club on the Grand River. Set in a serene, green enclave with access to scenic trails and conservation areas, this home is perfect for nature lovers and outdoor enthusiasts. At 2,150 sq ft, this home offers a thoughtful layout, hardwood floors, and plenty of windows that fill the space with natural light and comfort. The expansive living room features a soaring cathedral ceiling, fireplace, and walkout to the tranquil backyard deck with privacy given from trees and shrubs. The open-concept kitchen showcases stainless-steel appliances, elegant maple cabinetry, and a spacious breakfast bar, flowing seamlessly into the living and dining spaces. Three generously sized bedrooms each feature an ensuite, including a primary suite with cathedral ceilings, his-and-hers closets, and a spa-inspired soaker tub. The upper loft-style family room overlooks the living room, with an adjacent third bedroom completing the upper level. The main-floor laundry is the largest in the complex, with ample storage & built-in organizers. The 1,600 sq ft unfinished basement with bonus 7.6 ft ceiling height provides abundant space, including a rare large L-shaped cantina with two entrances and rough-in bathroom, ready to be customized for entertainment or additional living. Residents enjoy exclusive access to the Mill Clubhouse with lounge, library, gym, and billiards, along with community events and access to Grand River trails and Doon Valley Golf Course steps away. Low condo fees cover professional landscaping and snow removal, while a well-managed Condo Corporation maintains pristine grounds year-round. Quick access to HWY 401, shopping, dining, and transit completes this exceptional lifestyle opportunity.

Property Info
MLS®: X12801220
Listing Courtesy of EXP REALTY
Total Bedrooms 3
Total Bathrooms 3
Basement 1
Floor Space 2000-2249 sq.ft.
Style Bungaloft
Last Updated 2026-02-19
Property Type Townhouse
Listed Price $849,000
Unit Pricing $378/sq.ft.
Strata Fee $387.00
Tax Estimate $5,929/Year
Rooms
More Details
Exterior Finish Brick, Vinyl Siding
Parking Cover 2
Parking Total 2
Summary
    Location and General Information
  • HoldoverDays: 90
  • Architectural Style: Bungaloft
  • Property Type: Residential Condo & Other
  • Property Sub Type: Condo Townhouse
  • GarageType: Attached
  • Directions: Doon Valley Dr / Old Mill Rd
  • Taxes and HOA Information
  • Tax Year: 2025
  • Parking
  • ParkingSpaces: 2
  • Parking Total: 4
Interior and Exterior Features
    Bathrooms Information
  • WashroomsType1: 1
  • WashroomsType1Level: Main
  • WashroomsType2: 1
  • WashroomsType2Level: Main
  • WashroomsType3: 1
  • WashroomsType3Level: Upper
  • Bedrooms Information
  • BedroomsAboveGrade: 3
  • Interior Features
  • Interior Features: Primary Bedroom - Main Floor
  • Basement: Unfinished
  • Cooling: Central Air
  • HeatSource: Gas
  • HeatType: Forced Air
  • LaundryLevel: Main Level
  • Exterior Features
  • ConstructionMaterials: Brick, Vinyl Siding
Property
    Utilities
    Property and Assessments
    Lot Information
  • Parcel Number: 233690046
  • Others
  • PropertyFeatures: Golf, Greenbelt/Conservation, Public Transit, Wooded/Treed, School, Library
Sold History
MAP & Nearby Facilities (The data is not provided by TRREB)
Map
Nearby Facilities
Public Transit ({{ nearByFacilities.transits? nearByFacilities.transits.length:0 }})
SuperMarket ({{ nearByFacilities.supermarkets? nearByFacilities.supermarkets.length:0 }})
Hospital ({{ nearByFacilities.hospitals? nearByFacilities.hospitals.length:0 }})
Other ({{ nearByFacilities.pois? nearByFacilities.pois.length:0 }})
School Catchments
School Name Type Grades Catchment Distance
{{ item.school_type }} {{ item.school_grades }} {{ item.is_catchment? 'In Catchment': '' }} {{ item.distance }}
Mortgage Calculator (The data is not provided by TRREB)
$
$
$
%
%
Estimated Payments

$

Weekly Bi Weekly Semi Monthly Monthly

Nearby Similar Active listings
Nearby Open House listings
Nearby Price Reduced listings
Nearby Similar Listings Closed
MLS Listing Browsing History
Obtain More Info
500 word remaining